Présentation du lave-vaisselle ASKO DSD545KXXL
Photos non contractuelles
DERNIER PRIX RELEVÉ
1299.00 €
Il n'y a actuellement aucune offre de nos marchands référencés sur ce produit.
À retenir du lave-vaisselle ASKO DSD545KXXL
- Lave-vaisselle tout intégrable
- Capacité de 14 couverts
- Technologies : 8Steel • Anti Block • AquaDetect • AquaLevel • Cutlery Spray • Sensi Clean • Super Cleaning System • AquaSafe • ConnectLife
- Confort : Premium • Status Light (3 couleurs)
- 2 paniers + 1 tiroir spécial couverts - Panier supérieur réglable en hauteur
- 8 programmes de lavage
- Démarrage différé 24h
- Niveau sonore max : B | 40 dB
- Classe énergie : B
ASKO DSD545KXXL et
produits associés
CE MODÈLE
ASKO DSD545KXXL
Hauteur 859 mm
Aucune offre actuellement
Note : les prix affichés dans les cartouches sont les prix TFC (Tous Frais Compris), hors remises, bons de réduction, ODR, etc. Naviguez sur le produit pour voir si des réductions spécifiques s'appliquent.
Fiche Technique Electromenager-Compare* du ASKO DSD545KXXL
Introduction du lave-vaisselle ASKO DSD545KXXL
Désignation :
ASKO DSD545KXXL (DSD 545 KXXL)
Date de sortie (approx.) :
Début 2023
Informations sur la pose et l'installation du lave-vaisselle ASKO DSD545KXXL
Type de pose :
Tout intégrable (Habillage de porte non fourni)
Pieds :
Appareil avec pieds ajustables
Porte à glissières :
La porte comprend un système de glissières permettant une intégration parfaite
Compléments d'informations :
Ressort de porte réglable par l'avant
Pied arrière réglable depuis l'avant
Bandes velcro pour faciliter le montage et le réglage de la porte d'habillage personnalisée
Possibilité d'installation à hauteur ergonomique
Hauteur de la porte d'habillage 760-840 mm
Bande de protection contre la vapeur
Informations générales sur les paniers du lave-vaisselle ASKO DSD545KXXL
Nombre de couverts :
14 couverts
Panier inférieur :
Panier inférieur "Premium" et avec des picots rabattables, une poignée d'ouverture et un panier à couverts.
Panier à mailles fines
Poignée en plastique (logo)
Rangée de picots arrière rabattable/divisible
Panier à couverts
Panier supérieur :
Panier supérieur "Premium", réglable en hauteur et avec des supports abattables et une poignée d'ouverture.
Porte-couteaux standard
Support fixe pour les verres
Rangées de picots fixes
Supports pour verres à vin rabattables à droite
Supports pour verres à vin rabattables à gauche
Poignée en plastique (logo)
Panier à mailles fines
Tiroir à couverts supérieur :
Tiroir à couverts supérieur amovible et réglable au niveau de la charge et avec une poignée d'ouverture.
Informations sur le lavage/séchage du lave-vaisselle ASKO DSD545KXXL
Système de lavage :
3 bras de lavage
9 zones d'arrosage
Bras gicleur en acier inoxydable
Système de séchage :
Ouverture porte fin de cycle
Informations sur les programmes de lavage du lave-vaisselle ASKO DSD545KXXL
Programmes :
Programmes pré-paramétrés : 8
Températures :
4 températures de lavage allant de 50°C à 70°C
Programmes automatiques :
Auto 50-65° • Durée programmée • Hygiène 70° • Intensif 70°
Programme rapide :
Rapide pro 60°
Programmes cycles :
Autonettoyage 70° • Prérinçage
Options de lavage :
Mode nuit • Mode vert • Mode vitesse • Super rinçage
Informations sur la connectivité et multimédia du lave-vaisselle ASKO DSD545KXXL
Connectivité :
Cet appareil est dit "connecté" par un protocole de communication pour échanger des informations avec d'autres appareils.
Plus d'infos sur la connectivité :
Commmande à distance
Connexion Wi-Fi :
Compatible Wi-Fi
Fonctions de confort du lave-vaisselle ASKO DSD545KXXL
Fonctions de confort :
Démarrage différé de 1 h à 24 h
Rajout de vaisselle possible (tant que c'est possible, le lave-vaisselle autorise la réouverture de la porte)
Informations sur l'éclairage :
Éclairage interne à l'ouverture de la porte
2 éclairages LED
Afficheur :
Afficheur LCD/Digital
Réglages :
- Choix de la langue
- Niveau de liquide de rinçage
- Dureté de l'eau
- TAB On/Off (à activer lors de l'utilisation de détergent tout en 1)
- Connexion WiFi
- Ajout appareil (pour appairer plusieurs appareils/utilisateurs)
- Sécurité enfants auto
- Affichage (logo / contraste / infos écran)
- Super rinçage
- Éclairage intérieur
- Réglages usine
- Panne
- Son
Panneau de commandes :
Positionné sur la tranche
Indicateurs et voyants :
Liste des indicateurs disponibles :
- Indicateur de temps restant
- Indicateur de fin de cycle visuel et sonore
- Voyant de niveau de sel
- Voyant de liquide de rinçage
- Faisceau lumineux de cycle en cours : Status Light (3 couleurs)
- Indicateur d'autonettoage de la machine à faire
- Voyant Wi-Fi
Autres équipements du lave-vaisselle ASKO DSD545KXXL
Informations sur la cuve :
Matériau principal de la cuve : Inox
Filtres & Eau :
Il est possible d'alimenter directement en eau chaude le lave-vaisselle.
Un adoucisseur d'eau est présent.
Température max. de l'eau : 70°C
Autres équipements :
Diagnostic d'erreurs visuel
Adoucisseur d'eau automatique
Tuyau d'alimentation en PEX
Anti-siphon intégré
Normes et sécurité du lave-vaisselle ASKO DSD545KXXL
Sécurités :
Sécurité enfant (Kid Safe)
Anti-réaspiration / anti-débordement
Anti-fuite (
AquaSafe)
Autres informations :
Alarme lumineuse et sonore
Veille de sécurité (détection des fuites lorsque la machine est éteinte)
Détection des fuites d'eau au fond de la cuve
Points d'étanchéité à l'extérieur de la cuve
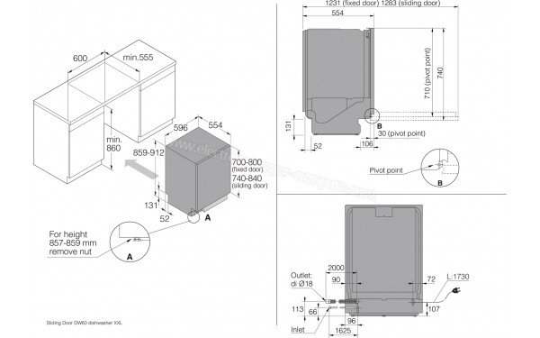
Dimensions et poids du lave-vaisselle ASKO DSD545KXXL
Dimensions déballé :
859 x 596 x 554 mm (HxLxP)
Dimensions emballé :
930 x 640 x 680 mm (HxLxP)
Dimensions niche :
860 x 600 x 560 mm (HxLxP)
Hauteur réglable :
sur 53 mm
Longueur tuyau arrivée eau :
163 cm
Longueur tuyau vidange eau :
200 cm
Long. câble alimentation :
173 cm
Plus d'informations :
Hauteur maximale du produit : 912 mm
Performances et consommations normalisées (depuis 2021) du lave-vaisselle ASKO DSD545KXXL
Coût Lavage pour 100 cycles :
20.1 € (approximatif)
• Classe efficacité énergétique :
B (Indice : 37.6)
• Indice perf. de lavage :
1.13
• Indice perf. de séchage :
1.07
Consommation électrique :
64 kWh / 100 Cycles
Consommation d'eau :
9.2 Litres / 1 Cycle
Durée d'un cycle :
3 h 15 min
Autres informations sur les performances et consommations du lave-vaisselle ASKO DSD545KXXL
Classe d'émission sonore :
B
Niveau sonore Lavage :
40 dB(A) re 1 pW
Puissance maximale :
1900 W
Conso. en veille (réseau activé) :
1.99 W
Conso. en veille (laissé sur marche) :
0.49 W
Conso. pendant le mode différé :
3.99 W
Informations électriques :
220-240 V • 50 Hz • 10 A
Plus d'informations :
Type de prise : Euro
Durée de vie du lave-vaisselle ASKO DSD545KXXL
Informations diverses du lave-vaisselle ASKO DSD545KXXL
Couleurs :
Bandeau : Argent
Référence (EAN et/ou UPC) :
739512 (3838782613401)
Les groupes de produits associés au lave-vaisselle ASKO DSD545KXXL
Modèles similaires :
Lave-vaisselles Asko DSD545K- ASKO DSD545K : Hauteur 819 mm
- ASKO DSD545KXXL : Hauteur 859 mm
* Attention : Les informations présentes sur cette fiche sont compilées par l'équipe Electromenager-Compare à partir des informations qui sont mises à sa disposition et sont données à titre strictement indicatif.
Elles ne sont donc pas exhaustives et ne se substituent en aucun cas aux informations techniques du constructeur.
Il appartient à l'internaute de se référer au site du constructeur/marque ou de contacter un marchand référencé vendant le produit avant tout achat ou pour une plus ample information.
Veuillez également noter que certaines fonctionnalités peuvent être accessibles après une mise à jour proposée par le fabricant.
Si vous constatez une erreur dans cette fiche, n'hésitez pas à nous la signaler en cliquant sur le lien ci-dessous afin que nous puissions prendre en compte vos observations qui pourraient servir à la communauté.
Marchands et Prix* pour le ASKO DSD545KXXL
Ci-après, une liste d'offres destinées à être comparées et triées, par défaut, sur le prix TFC.
Ces offres et les informations affichées sont proposées exclusivement par les marchands référencés à titre payant et ne représentent pas toutes les offres du marché.
NOTE : Chaque lien est "rémunéré" si vous achetez quelque chose chez le marchand. C'est la contrepartie du travail qui vous est fourni gratuitement sur notre site.
Il n'y a actuellement aucune offre de nos marchands référencés sur ce produit.
Dernier prix relevé : 1299.00 €
* Attention : pour des raisons techniques, Electromenager-Compare ne peut pas garantir, en temps réel, l'exactitude des prix et des informations affichées. Les prix et la disponibilité des produits sont exacts à la date et à l'heure indiquées et peuvent changer à tout moment.
Le prix et les informations de disponibilités, affichés sur le site du marchand concerné au moment de l'achat, s'appliquent à l'achat de ce produit.
N'hésitez pas à nous signaler toute erreur en cliquant sur le lien ci-dessous afin que nous puissions prendre en compte vos observations qui pourraient servir à la communauté.
Avis et Notes du ASKO DSD545KXXL
été déposé sur le site
chez les marchands partenaires.
Toutefois vous pouvez rechercher les avis sur les autres produits de la même famille à l'aide des options de recherche ci-dessus.