Archives
Lave-vaisselle ASKO
ASKO DFI746U (DFI 746 U)

Présentation du lave-vaisselle ASKO DFI746U

DERNIER PRIX RELEVÉ
1699.00 €
Il n'y a actuellement aucune offre de nos marchands référencés sur ce produit.
HISTORIQUE DES PRIX
NOTE SUR 10
Notre site
?
Non évalué
Marchands
?
Inconnu

À retenir du lave-vaisselle ASKO DFI746U

  • Lave-vaisselle tout intégrable
  • Capacité de 14 couverts
  • Technologies : 8Steel • Anti Block • AquaDetect • AquaLevel • Cutlery Spray • Sensi Clean • Super Cleaning System • Turbo Combi Drying • AquaSafeConnectLife
  • Confort : Exclusif • Status Light (3 couleurs) • Push to open
  • 2 paniers + 1 tiroir spécial couverts - Panier supérieur réglable en hauteur
  • 15 programmes de lavage
  • Démarrage différé 24h
  • Niveau sonore max : B | 39 dB
  • Classe énergie : B
Pour vous aider à choisir votre Lave-vaisselle : consultez le guide d'achat des Lave-vaisselles.

Fiche Technique Electromenager-Compare* du ASKO DFI746U

Introduction du lave-vaisselle ASKO DFI746U

Désignation :
ASKO DFI746U (DFI 746 U)
Date de sortie (approx.) :
Début 2023

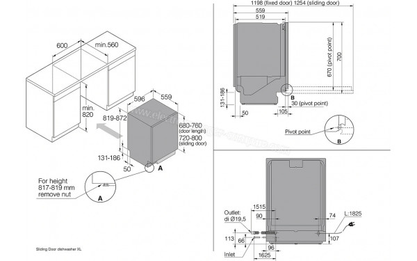
Informations sur la pose et l'installation du lave-vaisselle ASKO DFI746U

Type de pose :
Tout intégrable (Habillage de porte non fourni)
Pieds :
Appareil avec pieds ajustables
Compléments d'informations :
Ressort de porte réglable par l'avant
Pied arrière réglable depuis l'avant
Bandes velcro pour faciliter le montage et le réglage de la porte d'habillage personnalisée
Possibilité d'installation à hauteur ergonomique
Hauteur de la porte d'habillage 680-760 mm

Informations générales sur les paniers du lave-vaisselle ASKO DFI746U

Nombre de couverts :
14 couverts
Panier inférieur :
Panier inférieur "Exclusif" et avec des picots rabattables et une poignée d'ouverture.
Rangée de picots arrière rabattable/divisible
Support pour le lavage des vases/bouteilles/biberons
Rangée de picots avant rabattable/divisible
Verrou pour picot rabattable
Panier à mailles fines - facilite le chargement et empêche les petits objets de tomber au travers.
Poignée avec logo ASKO
Panier supérieur :
Panier supérieur "Exclusif", réglable en hauteur et avec des supports abattables, des picots rabattables et une poignée d'ouverture.
Panier à mailles fines en acier
Toutes les rangées de picots sont rabattables
Supports pour verres à vin divisibles/rabattables
fixation Light Lock™ (pour maintenir les articles légers)
Glissières télescopiques
Protection de la porcelaine - sécurise la vaisselle fragile lors de la rotation des bras gicleurs
Porte-couteaux ultra large
Poignée avec logo ASKO
Tiroir à couverts supérieur :
Tiroir à couverts supérieur amovible et avec une poignée d'ouverture.
Tiroir à glissières télescopiques

Informations sur le lavage/séchage du lave-vaisselle ASKO DFI746U

Technologies Principales :
8SteelAnti BlockAquaDetectAquaLevelCutlery SpraySensi CleanSuper Cleaning System
Système de lavage :
3 bras de lavage
Option de lavage d'un seul panier

9 zones d'arrosage
Bras gicleur en acier inoxydable
Système de séchage :
Technologie de séchage "Turbo Combi Drying"
Séchage ventilé
Ouverture porte fin de cycle

Informations sur les programmes de lavage du lave-vaisselle ASKO DFI746U

Programmes :
Programmes pré-paramétrés : 15
Températures :
6 températures de lavage allant de 45°C à 70°C
Programmes automatiques :
Anti-odeur 72 h • Auto 50-65° • Demi-charge panier du bas 65° • Demi-charge panier du haut 65° • Durée programmée • Hygiène 70° • Intensif 70° • Plastique 55° • Préchauffé 65° • Universel 60° • Verres cristal 45°
Programme éco. :
Eco 49°
Programme rapide :
Rapide pro 60°
Programmes cycles :
Autonettoyage 70° • Prérinçage
Autres informations :
Programme anti-odeur : Ce programme empêche les mauvaises odeurs de la vaisselle sale laissée dans le lave-vaisselle. Seul le ventilateur du lave-vaisselle est activé (à intervalles réguliers pendant une période de 72 heures)
Options de lavage :
ExtraHygiene avec UV • Mode intensif • Mode nuit • Mode vert • Mode vitesse • Super rinçage

Informations sur la connectivité et multimédia du lave-vaisselle ASKO DFI746U

Connectivité :
Cet appareil est dit "connecté" par un protocole de communication pour échanger des informations avec d'autres appareils.
Connexion Wi-Fi :
Compatible Wi-Fi
Application Mobile :
ConnectLife
Contrôle à distance

Fonctions de confort du lave-vaisselle ASKO DFI746U

Fonctions de confort :
Démarrage différé de 1 h à 24 h
Doseur automatique
Informations sur la porte :
Ouverture par simple pression (Push to open)
Informations sur l'éclairage :
Éclairage interne à l'ouverture de la porte

2 éclairages LED
Afficheur :
Afficheur LCD/Digital

Réglages :
  • Choix de la langue d'affichage (21 langues disponibles)
  • Liquide de rinçage
  • Dureté de l'eau
  • TAB On/Off (pour détergent en tablette)
  • Dosage auto
  • Réseau Wi-Fi
  • Choix des programmes
  • Sécurité enfants automatique
  • Affichage du Logo
  • Réglage de la luminosité
  • Volume de retours
  • Volume de notifications
  • Super rinçage
  • Ouverture push
  • Éclairage intérieur quand appareil à l'arrêt
  • Contrôle odeurs
  • Panne
  • Réinitialisation des réglages usine
Panneau de commandes :
Positionné sur la tranche avec les touches sensitives

Touche départ/stop
Indicateurs et voyants :
Liste des indicateurs disponibles :
  • Indicateur de temps restant
  • Indicateur de fin de cycle visuel et sonore
  • Voyant de niveau de sel
  • Voyant de liquide de rinçage
  • Faisceau lumineux de cycle en cours : Status Light (3 couleurs)
  • Nombre de cycles

Autres équipements du lave-vaisselle ASKO DFI746U

Informations sur la cuve :
Matériau principal de la cuve : Inox
Bac lessive & lessive :
Quels détergents choisir ? ... Consultez notre dossier sur les poudres, tablettes, gels ou liquides pour laver la vaisselle.
Filtres & Eau :
3 filtres présents.
Il est possible d'alimenter directement en eau chaude le lave-vaisselle.
Un adoucisseur d'eau est présent.
Température max. de l'eau : 70°C
Autres équipements :
Diagnostic d'erreurs visuel

Adoucisseur d'eau automatique
Anti-siphon intégré (Empêche l'entrée et la sortie spontanée de l'eau et simplifie l'installation à hauteur ergonomique)
Bande de protection contre la vapeur
Fond de la cuve étanche
Tuyau d'alimentation en PEX
Pompe de vidange autonettoyante

Normes et sécurité du lave-vaisselle ASKO DFI746U

Sécurités :
Sécurité enfant
Anti-fuite (AquaSafe)
Autres informations :
Points d'étanchéité à l'extérieur de la cuve
Détection des fuites d'eau au fond de la cuve
Veille de sécurité (détection des fuites lorsque la machine est éteinte)
Alarme lumineuse et sonore

Dimensions et poids du lave-vaisselle ASKO DFI746U

Dimensions déballé :
819 x 596 x 554 mm (HxLxP)
Poids déballé :
45.01 kg
Dimensions emballé :
890 x 640 x 680 mm (HxLxP)
Poids emballé :
48 kg
Dimensions niche :
820 x 600 x 560 mm (HxLxP)
Hauteur réglable :
sur 53 mm
Porte ouverte :
1191 mm
Longueur tuyau arrivée eau :
163 cm
Longueur tuyau vidange eau :
200 cm
Long. câble alimentation :
173 cm
Plus d'informations :
Hauteur maximale du produit : 872 mm

Performances et consommations normalisées (depuis 2021) du lave-vaisselle ASKO DFI746U

Coût Lavage pour 100 cycles :
20.1 € (approximatif)
Efficacité :
• Classe efficacité énergétique :
B (Indice : 37.6)
• Indice perf. de lavage :
1.13
• Indice perf. de séchage :
1.07
Consommation électrique :
64 kWh / 100 Cycles
Consommation d'eau :
9.2 Litres / 1 Cycle
Durée d'un cycle :
3 h 15 min

Autres informations sur les performances et consommations du lave-vaisselle ASKO DFI746U

Classe d'émission sonore :
B
Niveau sonore Lavage :
39 dB(A) re 1 pW
Puissance maximale :
1900 W
Conso. en veille (réseau activé) :
1.99 W
Conso. en veille (laissé sur marche) :
0.49 W
Conso. pendant le mode différé :
3.99 W
Informations électriques :
220-240 V • 50 Hz • 10 A
Plus d'informations :
Type de prise : euro

Durée de vie du lave-vaisselle ASKO DFI746U

Informations diverses du lave-vaisselle ASKO DFI746U

Design / Série :
Style
Couleurs :
Bandeau : Argent
Référence (EAN et/ou UPC) :
739523 (3838782605253)

Marchands et Prix* pour le ASKO DFI746U

Il n'y a actuellement aucune offre de nos marchands référencés sur ce produit.
Dernier prix relevé : 1699.00 €

Avis et Notes du ASKO DFI746U

Electromenager Compare
?
Aucun avis n'a encore
été déposé sur le site
DÉPOSER UN AVIS
SITES MARCHANDS
?
Aucun avis n'a été relevé
chez les marchands partenaires.
Avis des utilisateurs Electromenager Compare pour le ASKO DFI746U
Aucun avis n'a encore été déposé pour ce produit sur Electromenager COMPARE !
ODR BONS PLANS